3 pokoje
50.00 m²
5 100,00 zł/m2
ZUR-DS-4900
Powiadom o spadku ceny

255 000 zł

Dom na sprzedaż

Szczegóły oferty

Symbol oferty ZUR-DS-4900
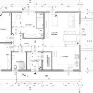
Powierzchnia 50,00 m²
Liczba pokoi 3
Rodzaj domu wolnostojący
Standard
Okna nowe PCV
Pomieszczenia

Opis nieruchomości

Nowoczesne domy prefabrykowane – szybka budowa, wysoka jakość, konkurencyjne ceny!

Twój wymarzony dom już teraz może stać się rzeczywistością. Oferujemy kompleksową budowę domów prefabrykowanych w różnych wariantach powierzchni, dostosowanych do Twoich potrzeb.

Dostępne metraże i ceny:

50 m² – 255 000 zł brutto
60 m² – 270 000 zł brutto
70 m² – 285 000 zł brutto
80 m² – 303 000 zł brutto
90 m² – 320 000 zł brutto
100 m² – 357 000 zł brutto

Co obejmuje cena?

Płyta fundamentowa:

Izolacja cieplna i hydroizolacja
Wykonanie płyty fundamentowej
Rozprowadzenie instalacji wodno-kanalizacyjnych i elektrycznych
Wylewka posadzkowa

Uwaga! Cena nie obejmuje warstw wykończeniowych posadzki (np. paneli, płytek).

Prefabrykowane ściany zewnętrzne (230 mm):

Tynk akrylowy, klej i siatka – dostosowane do projektu
Styropian lub wełna skalna (w zależności od projektu)
Płyta MFP (12 mm)
Wiatroizolacja i wełna mineralna 0,038
Drewno konstrukcyjne C24
Wprowadzenie kabli elektrycznych i instalacji wodnych
Paraizolacja, płyta Fermacell (12,5 mm)
Okna PCV trzyszybowe, kolor biały wewnątrz i na zewnątrz
Parapety wewnętrzne PCV, zewnętrzne metalowe, ocynkowane


Prefabrykowane ściany wewnętrzne (100 mm):


Paraizolacja i wełna mineralna 0,038
Drewno konstrukcyjne C24
Wprowadzenie kabli elektrycznych i instalacji wodnych
Gotowa łazienka


Uwaga! W standardzie brak drzwi wewnętrznych.


Konstrukcja dachu (wiązary):


Pokrycie dachu: blachodachówka lub blacha na rąbek
PVC ocynkowane, membrana dachowa
Płyty OSB jako strop poddasza w części komunikacyjnej
Wełna wygłuszająca w stropie, folia paraizolacyjna, płyta GK w sufitach
Drabina chowana w stropie

Uwaga! Poddasze nieużytkowe.



Dodatkowe informacje:

Montaż prefabrykatów odbywa się bezpośrednio na budowie.
Standard wykonania do wyboru: deweloperski lub zamknięcie T++.
Montaż szamba betonowego 10 m³ – przygotowanie dołu dostępne za dopłatą.




Zainwestuj w swój komfort i oszczędność czasu!

Nasze domy prefabrykowane to nowoczesne rozwiązanie, które łączy w sobie solidną konstrukcję, estetykę oraz szybki czas realizacji.
Skontaktuj się z nami, aby poznać szczegóły i zaplanować budowę Twojego wymarzonego domu!


 

Agent

Proszę wprowadzić poprawne imię i nazwisko
Proszę wprowadzić poprawny numer telefonu
Proszę wprowadzić poprawny adres e-mail
Proszę zaznaczyć wymagane zgody
Rozwiąż równanie:
21 2
Niepoprawny wynik