Dom na sprzedaż Strzelce Opolskie (gw)

8 pokoi
202.00 m²
4 207,92 zł/m2
ZUR-DS-4971
Powiadom o spadku ceny

850 000 zł

Dom na sprzedaż
Oferta na wyłączność

Szczegóły oferty

Symbol oferty ZUR-DS-4971
Powierzchnia 202,00 m²
Powierzchnia działki [m2] 900 m²
Liczba pokoi 8
Liczba sypialni 6
Rodzaj domu wolnostojący
Technologia budowlana cegła, pustak
Standard
Liczba pięter w budynku 1
Wymiary działki 19X48 m
Garaż brak
Okna nowe PCV
Instalacje nowe
Balkon brak
Zagosp. działki zagospodarowana
Ukształtowanie działki płaska
Kształt działki prostokąt
Pokrycie dachu papa termozgrzewalna
Stan budynku do zamieszkania
Ogrodzenie działki mieszane
Rok budowy 1980
Gaz brak
Woda jest
Dojazd asfalt
Otoczenie działki zabudowane
Ogrzewanie własne dla budynku
Prąd jest
Kanalizacja tak
Pomieszczenia
Podłogi pokoi panele
Typ kuchni z możliwością pozostawienia zabudowy
Rodzaj kuchni oddzielna
Typ łazienki razem z wc
Liczba WC 2
Liczba przedpokoi 2

Opis nieruchomości

Oferujemy na sprzedaż pięknie położony dom w odległości ok. 6 km od Strzelec Opolskich. 
Dwukondygnacyjny budynek z lat 80-tych został gruntownie wyremontowany
zgodnie z załączonym projektem. Do tej pory wykorzystywany był jako obiekt pod wynajem.

Nieruchomość może stanowić doskonałą inwestycję, ale również umożliwia jej przekształcenie na dom rodzinny.

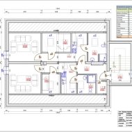
Parter domu o powierzchni 103 m2 składa się z 4 pokoi, przedpokoju, kuchni, dwóch toalet, dwóch pryszniców oraz pomieszczenia gospodarczego.
Na piętro domu prowadzą schody w dobudowanej klatce schodowej. Znajdują się tam dwa odrębne dwupokojowe mieszkania o powierzchni 50 m2. Każde z nich składa się z salonu, sypialni, kuchni i łazienki.
Budynek został wykończony z zastosowaniem wysokiej klasy materiałów budowlanych. Wszystkie instalacje są nowe. Energia elektryczna pobierana z sieci fotowoltaicznej rozliczanej wg systemu rozliczeniowego net mettering( stare zasady). Możliwość założenia pod-liczników do poszczególnych mieszkań. Dom ogrzewany piecem na pellet. Koszt ogrzewania budynku w ub.r. wyniósł ok. 5000 zł. Dach pokryty papą termozgrzewalną. Elewacja częściowa ocieplona styropianem, wymaga dokończenia.
Projekt budynku umożliwia stworzenia na poddaszu dodatkowej powierzchni mieszkalnej o powierzchni 79 m2.
Teren w całości ogrodzony.

Wnętrze domu urządzono bardzo gustownie, w nowoczesnym stylu , ale bardzo przytulnie. Kwestia umeblowania widocznego na zdjęciach do uzgodnienia.

Teren wokół domu utwardzony kamieniem, wykonany drenaż całej działki. Możliwość wykorzystania jako teren do prowadzenia działalności gospodarczej.


Niewątpliwą zaletą nieruchomości jest jej położenie.  Cicha i spokojna okolica, a jednocześnie  dogodny dojazd do drogi krajowej 94 łączącej Opole-Katowice.

Serdecznie zapraszamy na prezentację!



Współpracujemy z Opolskim Centrum Kredytowo-Leasingowym zapewniając fachową obsługę doradcy finansowego, który znajdzie dla naszych Klientów najkorzystniejszy kredyt hipoteczny i załatwi nieodpłatnie wszystkie formalności związane z uzyskaniem kredytu.

Podane wyżej informacje zostały pozyskane od właściciela nieruchomości i nie stanowią oferty określonej w art. 66 i następnych Kodeksu Cywilnego, mają one charakter wyłącznie informacyjny.
Aktualny stan prawny i faktyczny może podlegać aktualizacji. 
y na sprzedaż dom jednorodzinny położony 

Lokalizacja nieruchomości

Podobne oferty

Dom na sprzedaż

Strzelce Opolskie (gw), Szczepanek

6 pokoi 240 m2 4 583,33 zł/m2

Dom na sprzedaż

Strzelce Opolskie (gw), Osiek

5 pokoi 200 m2 3 250,00 zł/m2

Dom na sprzedaż

Strzelce Opolskie (gw), Szymiszów

5 pokoi 180 m2 4 438,89 zł/m2
Oferta na wyłączność

Dom na sprzedaż

Strzelce Opolskie (gw), Rozmierka

6 pokoi 240 m2 3 666,67 zł/m2
Oferta na wyłączność

Agent

Proszę wprowadzić poprawne imię i nazwisko
Proszę wprowadzić poprawny numer telefonu
Proszę wprowadzić poprawny adres e-mail
Proszę zaznaczyć wymagane zgody
Rozwiąż równanie:
24 2
Niepoprawny wynik